外構 植栽 デザイン
造園 外構から考える建築デザイン 植栽 外構家 造園家 takumi garden 平田智彦
植栽を生かしたデザインウォールの外構施工例 兵庫県川西市 創園舎
施工例シンボルツリー イロハモミジ 落葉樹 下草 低木 植栽 現場番号
外構 植栽 デザイン のギャラリー
花壇 植栽 ナチュラルガーデン ガーデンデザイン 外構 Garden Design Flower Bed Plants 庭 玄関アプローチ花壇 花壇
ガレージを併せ持つ住宅の外構植栽ランドスケープデザイン Moderne Facade Autres Perimetres Par Color Label Design Office 殿村明彦
施工例 ポイント植栽のシンプル外構 兵庫県姫路市
別荘地に建つ店舗併用住宅の外構植栽ランドスケープデザイン Shiga 06 18
植栽デザインへの想い 奈良の外構 お庭 エクステリアの専門店リーフユニティ
千葉県我孫子市 新築外構工事 シンプル 門柱 アプローチ 角柱 塀 コンクリート平板
造園 外構から考える建築デザイン 植栽 外構家 造園家 takumi garden 平田智彦
小さなお庭を広く見せる外構デザイン かんたん庭レシピ
新築外構の植栽工事のあるなしを考える エクステリアブログ
京都のリフォーム 店舗デザインはシエロデザイン 京都でのエクステリア 外構 や植栽は
住宅 外構 玄関アプローチ 駐車場 デザイン 溝 排水 植栽 植え込みの写真素材
新築外構とお庭の施工例 植栽やウッドデッキを取り入れたナチュラルなデザイン エクステリアブログ
空間を活用した植栽デザインで奥行を演出 東区 福岡市 外構 エクステリア 田主丸緑地建設
日比谷花壇がマンション外構植栽デザイン
店舗の植栽デザイン 施工事例 ピーグリーン 三重 四日市でエクステリア 外構 ガーデン 庭 の設計 施工
シンプル モダンなデザインが美しい外観 外構と植栽も 住たくeco工房 がトータルにプロデュース イエタテ
やすらぎの保育園様 外構 植栽工事 おしゃれなガーデンデザイン 新潟県阿賀野市 庭 エクステリア 外構 雅楽庭 新光園
植栽がさわやかな外構デザイン グリーンケア お庭のデザイン リフォーム 横浜 川崎
おしゃれなお庭 外構の植栽デザイン施工例 649件公開中 埼玉の専門店
住宅 玄関 外構 植栽 エクステリア アプローチ デザイン住宅の写真素材
150万円以内でできる外構のデザインをご紹介 千葉 埼玉のスペースガーデニング
アプローチ 駐車スペース 植栽 パーゴラ 門まわり ナチュラルガーデン ガーデンデザイン 外構 Total Garden Design エクステリア 庭 モダンガーデン
施工例 福岡市中央区 コンパクトなビルのスペースに植栽デザイン Tビル植栽工事 福岡県福岡市 造園 エクステリア お庭の管理 中村緑地建設
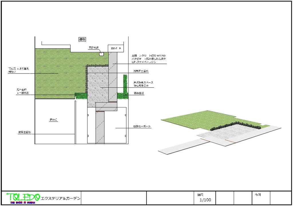
外構説明
エクステリアデザイン100 植栽 庭を楽しむ家 庭づくり エクステリア ミサワホーム
玄関アプローチ 外構植栽について
香芝市 植栽デザインはおまかせ 株立ちのカツラ 奈良の外構 お庭 エクステリアの専門店リーフユニティ
姫路市新築外構 植栽の入った外構お庭工事 姫路市の外構 エクステリア お庭のことなら サンガーデンへ
トロピカルな植栽とウッド門柱 横浜市栄区 施工事例 外構 お庭工事 デザイン 風知蒼
庭のリフォームで浅間石 植栽を使ったデザイン 長野市 外構のトレド
外構 植栽 エクステリア 雑木 樹木 デザイン壁 ディティール アーチ 目地デザイン シンボルツリー 自然石 砂利 溶岩石 玄関 アプローチ 門周り 和モダン Mode Of Garden 福岡 田主丸緑地 エクステリア 外構 玄関アプローチ
ナチュラルモダン外構 割肌の自然で美しい石英岩をポイントに施したガーデンデザイン 姫路市の外構 エクステリア お庭のことなら サンガーデンへ
浅間石 植栽で落ち着いたエクステリアデザイン 長野市 外構のトレド
外構デザイン例 手のかからない裏庭デザイン No 003 千葉市などの千葉県のエクステリア 外構 アメリカンガレージなら鵬プランニング
ストレスフリーな外構 新築外構デザイン 設計 植栽で目隠し 住宅建築コーディネーター 金丸伸 マイベストプロ大分
西宮市の外構植栽工事 大阪府 外構工事 エクステリア 設計 デザイン Sotodesign 竹本造園
住宅 外構 玄関アプローチ デザイン 外灯 植栽 植え込みの写真素材
ショールーム物語09lランドスケープとしての植栽設計についてlオフィス 設計 デザイン 設計デザインlマンションl木造アパートl住宅l東京都目黒区の建築設計事務所 ドキアーキテクツ
冬の庭の植栽工事 大阪府 外構工事 エクステリア 設計 デザイン Sotodesign 竹本造園
店舗の植栽デザイン 施工事例 ピーグリーン 三重 四日市でエクステリア 外構 ガーデン 庭 の設計 施工
ガレージを併せ持つ住宅の外構植栽ランドスケープデザイン Moderno Fachada Otras Zonas De Color Label Design Office 殿村明彦
緑あふれる外構 造園 庭 エクステリア ガーデニングデザイン ガラスコーティングのg Plan 鹿児島県 鹿児島市 エクステリア施工例3
外構をシンボルツリーと植栽で彩る横浜市 施工事例 外構 お庭工事 デザイン 風知蒼
家族が集える庭があり ガレージを再考した外構植栽ランドスケープデザイン Shiga 06 19
スリットフェンス 植栽 ナチュラルガーデン ガーデンデザイン 外構 Garden Design Slitted Fence Plants 自然庭園 エクステリア 庭
新築外構の植栽工事のあるなしを考える エクステリアブログ
浜松市中区外構 エクステリア 植栽とカーポートの調和デザイン 株式会社ナインスケッチ 雑木の庭 外構 エクステリア 静岡県浜松市 菊川市 掛川市
Q Tbn 3aand9gcsn4cqe2ijxnmoanlsuonc7rtl5r6zm3smuufvokbrdosdo7z5n Usqp Cau
玄関周りに小さな 森 を ナチュラルデザイン外構 住友林業のお家 久喜市t様邸 マイエクステリアgreenのお家外構施行日記
住宅のテイストに合わせて植栽を選ぶのは当然 テイスト別オススメ植栽 エクステリアと住まいの Nexell ネクセル
エクステリア 積水ハウスの特長 戸建住宅 積水ハウス
オフィスビル 外構植栽 オフィス 庭園 Works Oaseeds 第一園芸 植物でうるおいとコミュニケーションが生まれる空間へ
施行事例 株式会社庭彩 にわいろ
ガーデンエクステリア デザイン集 門柱アプローチ版 Ver 2 外構工事ドットプロ
植栽 モダンさと自然の調和した植栽 門壁や車庫土間のデザインはシンプルでシャープなラインですが 植栽は やはり自然な地になじむよう 違和感なく配植 します 門塀前には おしゃれなプランターにハランを植栽して 外にもグリーンインテリアでセンスアップ
繊細なデザインフェンスと植栽が織りなす外構 奈良県大和郡山市k様邸 奈良 大阪のエクステリア 外構工事はオカモトガーデンへ
シンプルモダン住宅 色鮮やかな植栽デザイン 奈良県橿原市 奈良 大阪の外構 造園 エクステリアのプランナー 職人の求人は植田造園土木株式会社
エクステリアデザイン100 建物の角面にこだわりの植栽を 庭を楽しむ家 庭づくり エクステリア ミサワホーム
植栽の栄える外構デザイン S様邸 イーゲルコット 株式会社クロダハウス
エクステリア 外構 はエスティナ高崎 自然のある庭デザイン 群馬 高崎 前橋 のハウスメーカー 四季の住まい 群馬のハウスメーカー 四季の住まい
野鳥がやってくるガーデンエクステリア おしゃれな外構と庭のザ シーズン大阪南港atcショールーム店のブログ
ナチュラルな植栽で狭い中庭も広く見えます 越谷市リフォーム外構工事 株式会社パサニアガーデンうさぎの庭 ガーデンプラット
Q Tbn 3aand9gcrs3ra0j2f4sf8t6fln275 Xflmqrimmhig9j5k Ij Myq0f5zw Usqp Cau
植栽と木調を活かしたモダンな門袖が特徴のエクステリアデザイン 目黒区o様邸新築外構工事 n 東京都世田谷区 エクステリア 外構 ガーデン 世田谷エクステリアルーム 三栄造園株式会社
ガーデニング エクステリア 外構 インナチュラル エクステリア 玄関 植木 ガーデン デザイン
緑と季節の花に彩られたマンション外構の植栽プラン 監修 グリーンケア お庭のデザイン リフォーム
緑と季節の花に彩られたマンション外構の植栽プラン 監修 グリーンケア お庭のデザイン リフォーム
浜松市中区外構 エクステリア 植栽とカーポートの調和デザイン 株式会社ナインスケッチ 雑木の庭 外構 エクステリア 静岡県浜松市 菊川市 掛川市
三井ホーム外構工事 植栽でエレガントに変身 愛知のガーデンデザイン 庭や日記3
造園 外構から考える建築デザイン 植栽 外構家 造園家 takumi garden 平田智彦
植栽が映えるシンプルなオープン外構 株式会社ウエシン 神戸のエクステリア 外構 造園
東建コーポレーション エクステリアデザイン
外構もインテリアのようにおしゃれにデザイン エクステリアを魅力的にするためのアイデアを素敵な実例とともにご紹介 Homify
デザイン性のある建物にマッチする おしゃれな外構植栽例 西区 福岡市 外構 エクステリア 田主丸緑地建設
Q Tbn 3aand9gcrr05te5jbg1s7 Anjdm Z4snl62mes69zpe0nvhb1qspeygnwv Usqp Cau
桜井市 モダンテイストの植栽デザイン 社屋前の植栽スペース 奈良の外構 お庭 エクステリアの専門店リーフユニティ
施工例 ポイント植栽のシンプル外構 兵庫県姫路市
ガーデンエクステリア デザイン集 門柱アプローチ版 Ver 4 外構工事ドットプロ
浜松市中区外構 エクステリア 植栽とカーポートの調和デザイン 株式会社ナインスケッチ 雑木の庭 外構 エクステリア 静岡県浜松市 菊川市 掛川市
外構にこだわりのデザインと植栽を横浜市 施工事例 外構 お庭工事 デザイン 風知蒼
こだわりの施工事例集 デザイナー別 外構 エクステリア 庭の ザ シーズン こだわりの施工例紹介
第2回 エクステリアの基本 通路と植栽 兵庫県姫路 サンリブ
トータテの家づくり 外構 植栽 庭 株式会社トータテ都市開発九州
道路沿いの60 のスペースにシンプルモダンな外構工事川崎市 施工事例 外構 お庭工事 デザイン 風知蒼
お手入れが苦手なあなたに 植栽一切なし の外構デザイン 外構 庭 リフォーム エクステリア情報
Q Tbn 3aand9gcq A Hy3k2mb7vvtkth9m0jhiginvqw6rda Mfmftgxfszdwnl4 Usqp Cau
常緑樹でオシャレな外構デザインを かんたん庭レシピ
小さなお庭を広く見せる外構デザイン かんたん庭レシピ
ガレージを併せ持つ住宅の外構植栽ランドスケープデザイン Moderne Facade Autres Perimetres Par Color Label Design Office 殿村明彦
植栽と木調を活かしたモダンな門袖が特徴のエクステリアデザイン 目黒区o様 東京都世田谷区 エクステリア 外構 ガーデン 世田谷エクステリアルーム 三栄造園株式会社
別荘地に建つ店舗併用住宅の外構植栽ランドスケープデザイン Shiga 06 18
アプローチ 植栽 門まわり ナチュラルガーデン ガーデンデザイン 外構 Garden Design Tiled Approach Plants Post 庭 ガーデンプラン エクステリア
植栽をして新築外構工事終了しました 廿日市 K様邸 新築外構工事 広島 エクステリア 外構 モダンハウジング
植栽が映えるシンプルなオープン外構 株式会社ウエシン 神戸のエクステリア 外構 造園
シックカラーの玄関まわり 植栽豊かな外構デザイン 五泉市m様邸 新潟県阿賀野市 庭 エクステリア 外構 雅楽庭 新光園
和モダンな玄関まわり 新発田市e様邸の外構植栽工事 新潟県阿賀野市 庭 エクステリア 外構 雅楽庭 新光園
角地の敷地を活かしたデザイン塀と植栽エリアが目を引くエクステリア エクステリア リフォーム 日野 八王子 多摩 国立 イゲタヤe R
ガーデンデザイン 施工 Verde 花あそび ナチュラルガーデンデザイン
ウッドとグリーンが彩りをそえる シンプルエクステリア エクステリア ガーデンの専門店 カエデスタイル エクステリア 庭 前庭
茨城県つくば市植栽のバランスとシンプルなデザインの外構 千葉 茨城の外構 エクステリアは ブリーズガーデン へ
ガーデンデザイン 施工 Verde 花あそび ナチュラルガーデンデザイン


